
Private Residence
Swansea
We have created an energy-efficient sustainable home built into the rugged hillside of an Area of Outstanding Natural Beauty, nestled amongst mature pine trees and harnessing views of the stunning Welsh coastline.
The existing dwelling did not take advantage of the wonderful views of the sea from the site. The client’s brief focused therefore on the potential of the location and the importance of the context of the site; the topography and existing trees. Keen gardeners and owners of two dogs, they wanted a house that would create a retreat that would be suitable for the warm months and harsh winters experienced in this area. Year round they wanted to be able to hear and smell the sea.
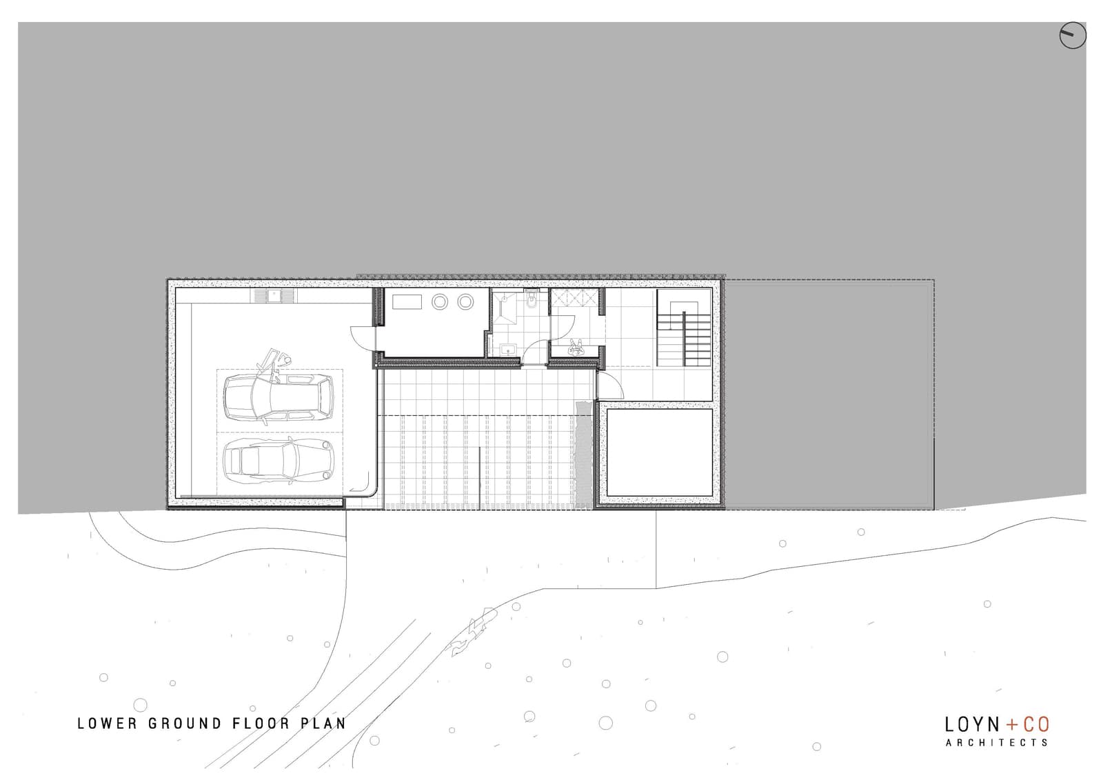
Contrary to ‘replacement dwelling’ policy, we proposed relocating the dwelling to maximise sea views. Working with the topography of the site, it quickly became apparent that the arrival point would become a hidden gem, buried into the existing hillside, with ancillary spaces housed at lower ground floor level.
The principal accommodation is provided at ground floor ensuring the spectacular views are maximised and accommodation rationalised; creating three zones within one level: sleeping, relaxing, and living. Sight lines through the building have been created, forming spaces that are connected to their outside environment. The first floor provides the main bedroom and ensuite with an enviable view from the bath down to the sandy beach.
At the centre of the home is a three storey indoor garden, filled with luscious trees and planting. This creates a staggering interior that allows the clients to garden indoors, all year round, an idea which developed as part of an evolving collaborative design process with the clients.
We strongly believe in early dialogue with the Local Planning Authority and this allowed us to convey the quality of the proposals and their appropriateness to the setting. As a result the planning process was smooth.
In terms of materials, the building is clad in sustainably-sourced Kebony wood, which is created through ‘an environmentally friendly process which modifies sustainably sourced softwoods. The result is a weathered natural silver-grey patina timber cladding, which sits delicately in the rural setting.
The ground floor and first floor of the building are constructed in timber frame with parallel chord trusses and steels beams where required. The lower floor, which acts as a retaining wall, is constructed in in-situ concrete with locally sourced Gwrhyd Pennant Stone cladding used on exposed walls.
The project was originally commissioned in November 2016. With the support of the local planning authority via pre-application discussions, planning consent was granted in September 2017. The client’s chosen contractor took possession of the site in May 2018, completing works to enable the client to move in to their new home in December 2020. The nature of the site location and difficult access proved challenging, but the team worked collaboratively to overcome these challenges and produce a piece of architecture to be proud of that contributes to the locality.
"From the very first meeting with LOYN+CO, we were able to see the possibilities of what we could achieve working together to design our house. We created a detailed brief but the project really came to life when we were brainstorming, with the architects sketching and capturing ideas.
Our broad vision was ‘bringing the outside in.’ Clearly this isn’t a unique vision, and we discussed in great detail what this idea truly meant for us and not someone else’s interpretation. How would we know if we’d achieved it? LOYN+CO had ideas on how we could literally bring the outside in. One of Ian’s passions is gardening, and this translated to an atrium with trees in the heart of the house. Ian can garden inside when the weather’s awful, with plants that wouldn’t survive outside in a UK coastal environment. It is a unique and ‘very us’ focal point for the design, and everyone passing the house comments on how amazing it is to see a tree inside! There was a very collaborative approach for researching and agreeing on complementary materials – bark and moss – to reinforce the outside-in feeling.
LOYN+CO explored options for the layout of the relatively narrow plot, tailoring the spaces exactly to our daily needs but flexible enough to be welcoming and useful when we have visitors. The house is everything we’d hoped it would be and more. We thoroughly enjoyed working with LOYN+CO – their passion and attention to detail are major factors in the success of the project. We challenged each other’s ideas and approaches, and the results of this close collaboration can be seen throughout the house.
We felt a responsibility to create a beautiful building, while being mindful of minimising any impact on neighbours. We wanted to become part of the local community and honestly believe the quality of the design and a demonstrable sensitivity was a factor in our integration and the warmth of the welcome we’ve received.
We had a great rapport and felt LOYN+CO had a good understanding of us and how we wanted to live, with the house working for our dogs as well as us. We chose LOYN+CO not just for their outstanding capabilities but also for their experience of creating designs of outstanding merit in AONB. The designs sailed through Planning and without a single objection which is testament to the design, and how sympathetic it was with the local environment.
The build process naturally had challenges. The site, its location and COVID all made for a difficult build but LOYN+CO managed the project and the problems were quickly forgotten once we moved in.
Our aim was to do something a little different, creating a house that was designed specifically for us and our needs. Such a successful collaboration with LOYN+CO has allowed us to achieve this, creating a house that makes us feel happy every day."
- Client:
- Private Client
- Meterage:
- 357m2
- EPC:
- 89/100 (B)
- Stage:
- Completed 2020
- Awards:
- Winner of SAW Welsh Architecture Award 2022, Winner of BLT Built Design Awards Winner