
Office of National Statistics
Masterplan for the Office of National Statistics
Government Headquarters, Newport
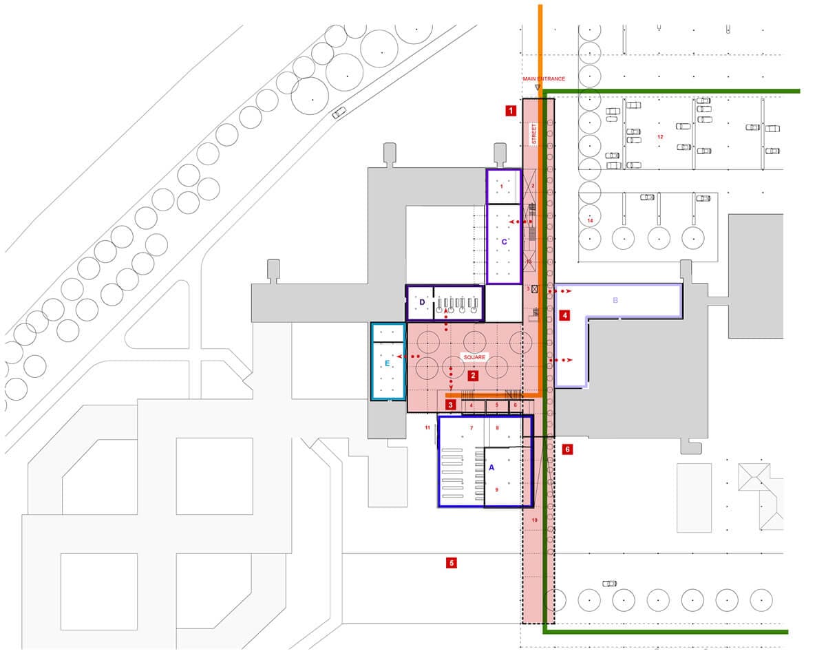
The existing buildings are sited within a parkland setting, providing a scenic environment for the UK headquarters of the Office of National Statistics. The buildings themselves require upgrading, both for functional reasons and perhaps more importantly, to create a first class facility for the site based staff. In addition, there are important issues of sustainability to be addressed in terms of the thermal performance and energy consumption of the buildings.
It was decided that proposed interventions should respond to the strong composition of the existing; reinterpreting the existing architecture using a different but respectful language. It was also felt that there should be an inseparable connection between the building and the landscape in which it sits, for example, allowing the entrance route to penetrate into the interior to create a seamless transition between outside and inside spaces. The Street and the Square, whilst primarily circulation areas, will host many other activities such as informal dining, shopping, meeting spaces, exhibitions, space for presentations and socials as well as business gatherings. These binding spaces lock together the existing buildings and generate numerous further opportunities for the newly connected existing buildings.
- Client:
- ONS
- Meterage:
- -
- Stage:
- Masterplan study completed 2010