
Lost Peatlands
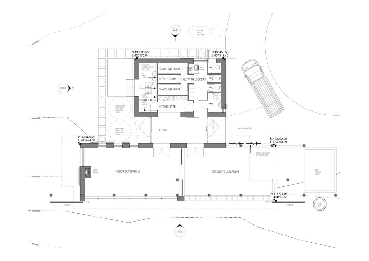
Education / Visitors Centre, Rhigos
The Countryside & Wildlife Team (C&W Team) of Neath Port Talbot County Borough Council (the Council) are administrating a landscape-scale partnership project, the ‘Lost Peatlands of South Wales. The project intends to restore the upland landscape of the Upper Afan Valley in Neath Port Talbot and the Upper Rhondda Fawr in Rhondda Cynon Taf whilst engaging and encouraging local communities and school children to get outside in their landscape to get healthier and learn about their local heritage. The site is in the heart of the Glamorgan coal field. It is located between Neath and Merthyr Tydfil and is just south of the A465; at the top of the mountains at the head of the Rhondda Fawr Valley. The site is at the edge of the Vattenfall Pen Y Cymoedd wind farm.
LOYN+CO assessed 8 potential locations for the building through an in-depth analysis. The clients were interested in using the project to inspire and provide an exemplary building demonstrating the principles of the Future Generations Act. The sustainable strategies proposed within the design focussed on solar-centred, passive design principles, using super-insulated natural materials. There was also a requirement to conduct a basic lifecycle analysis of the building and ensure that the design incorporated locally sourced materials with low embodied energy, potentially from the surrounding on-site woodland.
- Client:
- Neath Port Talbot County Borough Council
- Meterage:
- 100m2
- Stage:
- Planning Granted